Il WiderCat 92 si inserisce nel cuore del segmento 28–30 metri come progetto manifesto dell’elettrificazione pragmatica: un multiscafo di grande baglio, disegnato attorno a una catena di trazione elettrica alimentata da generazione termica ottimizzata e pacchi batteria ad alta stabilità. L’obiettivo è evidente: unire comfort acustico, volumi realmente fruibili e percorrenze importanti a velocità di crociera “intelligenti”, con consumi sotto controllo e un’impronta ambientale calcolata.
Il cantiere e la sua visione
Origine, crescita e posizionamento
Wider è un marchio italiano che ha costruito la propria reputazione su un tratto identitario netto: rendere la tecnologia elettrica una leva concreta di comfort e autonomia, non un esercizio stilistico. Il percorso industriale ha consolidato competenze interne nella progettazione e integrazione di sistemi ibridi in serie, affiancate da una filiera di fornitori selezionati su parametri di durevolezza, supporto e scalabilità.
Filosofia costruttiva e qualità percepita
L’impostazione progettuale è system first: prima si determinano curve di carico, mappature energetiche e scenari operativi; poi si calibra la piattaforma meccanica e, infine, si disegna l’abito architettonico. Ne scaturisce un prodotto che fa della coerenza la sua cifra: compartimentazioni pensate per semplificare manutenzioni, passaggi cavi ordinati con raggi di curvatura adeguati, accessibilità ai componenti critici e standardizzazione delle parti soggette a usura.

Dimensioni e architettura navale
Geometrie principali
Il WiderCat 92 sviluppa una lunghezza fuori tutto intorno ai ventotto metri con dodici metri di baglio, pescaggio ridotto e un dislocamento che, a pieno carico, resta contenuto per la classe di riferimento. Questa combinazione consente tre risultati concreti: baricentro favorevole per la stabilità trasversale, ampie piattaforme esterne che non costringono a compromessi sul layout e resistenza idrodinamica ottimizzata alle andature di crociera più utilizzate nella vita reale dell’imbarcazione.
Doppia carena e ponte connettivo
Le due carene strette lavorano per limitare la resistenza d’onda ai regimi dislocanti veloci, mentre la sovrastruttura “ponte” collega i volumi creando uno spazio a tutta larghezza sul ponte principale. Questa porzione è il cuore sociale dello yacht: un salone luminoso, allineato visivamente con l’esterno grazie a superfici vetrate a piena altezza e varchi generosi. La continuità tra aree interne ed esterne è parte della firma progettuale: la sensazione percepita è quella di una superficie utile superiore rispetto a un monoscafo delle stesse dimensioni.
Distribuzione dei pesi e assetto
La collocazione delle masse — batterie, quadri elettrici, convertitori, gruppi di generazione, serbatoi — è stata studiata per contenere momenti d’inerzia e accelerazioni angolari. La tendenza al rollio è intrinsecamente minima su un catamarano; ciò non toglie che la micro-dinamica dell’assetto richieda attenzione: il team ha lavorato sul posizionamento longitudinale dei pacchi batteria e sull’elasticità di supporti e basi, ottenendo un comportamento progressivo e prevedibile anche quando le condizioni meteo-marine alzano il livello di eccitazione sullo scafo.

Materiali, processi e controllo qualità
Scafo e sovrastruttura in composito
La scelta del composito consente di modulare rigidità e spessori in base alle sollecitazioni. Tessuti unidirezionali e multiaxial, abbinati a core a celle chiuse, sono impiegati con criterio, densificando dove la struttura richiede inerzia e alleggerendo nelle zone non critiche. L’obiettivo è duplice: contenere i pesi per allinearsi alla filosofia energetica del progetto e, al contempo, garantire una risposta vibratoria smorzata, elemento cardine per la percezione di comfort acustico negli ambienti di vita.
Finiture interne e trattamento acustico
Il linguaggio degli interni persegue un lusso misurato, di forte impronta funzionale. Legni selezionati, rivestimenti tecnici, pavimentazioni a bassa trasmissione sonora e pannellature fonoassorbenti creano un involucro acustico coerente con la propulsione elettrica: la rumorosità residua resta su livelli domestici in molte condizioni operative. Attenzione anche alla manutenzione: superfici e giunzioni sono pensati per ispezioni rapide, con sportelli dedicati e passaggi cavi ordinati su canaline identificabili.

Motorizzazioni, propulsione e trasmissione
Schema ibrido in serie
Il cuore del WiderCat 92 è un sistema ibrido in serie: le eliche sono mosse da motori elettrici, mentre la produzione di energia è affidata a generatori termici a regime variabile che alimentano la rete di bordo e ricaricano le batterie LFP. La separazione tra produzione e trazione elimina la necessità di una connessione meccanica diretta, riduce la complessità delle linee cinetiche e permette di far lavorare i termici nelle zone di massimo rendimento, con benefici tangibili su consumi, emissioni e manutenzione.
Batterie e gestione dell’energia
I pacchi LFP, scelti per stabilità termica e robustezza ciclica, forniscono la riserva necessaria a navigare in modalità completamente elettrica per periodi congrui e, soprattutto, a sostenere il cosiddetto “hotel load” in rada o in banchina senza ricorrere all’avviamento dei generatori. Integrazione fotovoltaica in tuga e logiche di power management consentono di ridurre ulteriormente le ore termiche.
Linee d’asse, eliche e controllo della coppia
La spinta è affidata a linee d’asse doppie ottimizzate per regimi continui, con eliche selezionate per generare trazione efficace ai bassi e medi nodi, dove l’imbarcazione compie il grosso del suo lavoro. La coppia istantanea del motore elettrico rende le manovre più controllabili: l’erogazione è modulabile con precisione, riducendo stress su organi meccanici e aumentando la sicurezza in porti stretti o con vento traverso.
Prestazioni e comportamenti
Velocità e range operativo
Il catamarano esprime il meglio tra i sei e i dodici nodi, con un margine superiore di velocità disponibile per esigenze di trasferimento o per approfittare di finestre meteo favorevoli. La velocità massima dipende dall’allestimento e dal carico, ma resta nell’intorno del valore atteso per multiscafi di pari dimensione votati alla percorrenza efficiente. L’autonomia, alla crociera dislocante, copre profili di missione a lungo raggio senza stress per l’apparato produttivo: la gestione energetica tiene i generatori nella fascia di miglior resa e preserva i cicli batteria.
Consumi, NVH e comfort dinamico
La combinazione di carene strette e propulsione elettrica porta con sé tre vantaggi pratici: consumo specifico contenuto alle andature più frequenti, rumorosità percepita bassa nei locali abitabili e vibrazioni ridotte grazie all’assenza di trasmissioni tradizionali complesse. I livelli di NVH si mantengono su valori che favoriscono conversazioni normali a bordo durante la crociera, anche con carichi di bordo attivi. Ne consegue minore affaticamento dell’equipaggio e maggiore qualità della vita per gli ospiti, soprattutto in crociere prolungate.

Sistemi di bordo e integrazione elettronica
Supervisione e interfacce
Il cervello dell’imbarcazione è un sistema di supervisione che centralizza il controllo di generazione, conversione, accumulo e trazione. Lo strato software fornisce sinottici chiari, storici di eventi, gestione degli allarmi e possibili strategie alternative in caso di anomalie. Il ponte strumenti utilizza interfacce glass con ridondanza fisica dei canali critici; la filosofia è ridurre il numero di passaggi tra operatore e funzione, per abbreviare i tempi di reazione e semplificare la conduzione.
Navigazione e sicurezza attiva
La suite di navigazione comprende le dotazioni tipiche della classe: doppi radar, chartplotter multifunzione, pilota automatico preciso ai bassi nodi (fondamentale per massimizzare l’efficienza ai regimi dislocanti), sensori di stato marino, termocamere opzionali per la bassa visibilità. L’integrazione con la gestione energetica permette scenari sinergici: il sistema può adattare la strategia di potenza alla rotta e alle condizioni, armonizzando domanda e offerta di energia con anticipo.

Impianti HVAC e servizi
La climatizzazione è dimensionata per lavorare in modalità silenziosa durante la notte, sfruttando la batteria e isolando i picchi di carico con buffer dedicati. Cucina a induzione, desalinizzatori, pompe e intrattenimento sono orchestrati per evitare picchi inutili, con logiche di carico shedding quando l’imbarcazione opera in scenari di autonomia elettrica prolungata. Il risultato è un comfort costante con minori accensioni dei termici e migliore percezione qualitativa degli spazi.
Design, spazi e fruizione
Linea esterna e coerenza funzionale
Le superfici esterne sono tese e pulite, con una sovrastruttura orizzontale che valorizza il baglio senza appesantire la lettura dei volumi. Aperture ampie sul main deck e parapetti progettati per garantire sicurezza e trasparenza visiva definiscono un linguaggio contemporaneo che non cede al decorativismo. Ogni scelta estetica è figlia di una ragione funzionale: protezione dal sole, canalizzazione del vento, schermatura acustica o aumento della permeabilità visiva tra dentro e fuori.
Layout del ponte principale
Il ponte principale accoglie un salone a tutta larghezza con zone conversazione modulabili, una dinette che può trasformarsi in spazio conviviale formale e, nelle configurazioni che lo prevedono, una suite armatoriale con accesso privilegiato alla zona di prua. La percezione è quella di una grande casa sul mare, dove i percorsi sono lineari e dove i flussi ospiti/servizio non collidono. La luce naturale è un protagonista silenzioso, gestita con superfici vetrate proporzionate e schermature che evitano surriscaldamenti.

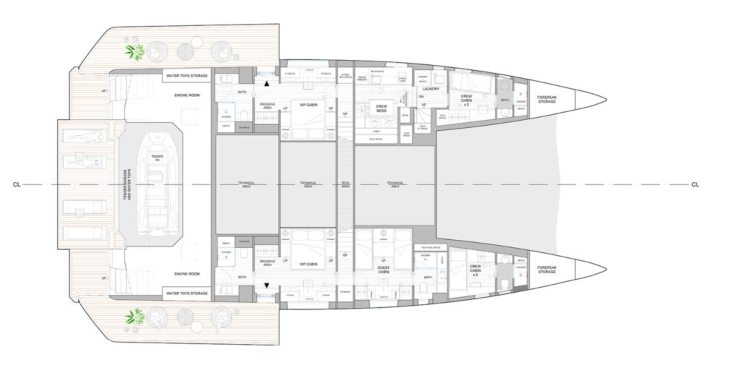
Ponti inferiori e cabine
Le cabine ospiti sono distribuite nei due scafi, ciascuna con bagno privato e stivaggi profondi. La separazione fisica tra i due volumi migliora privacy e comfort acustico, mentre i corridoi sono disegnati per evitare strozzature. L’altezza interna e la larghezza utile permettono layout generosi senza sacrificare zone tecniche e passaggi impiantistici. I materiali, comuni al resto dell’imbarcazione, garantiscono robustezza e facilità di pulizia, qualità essenziali soprattutto nel charter intensivo.

Spazi esterni e beach club
Murate apribili e piattaforme mobili creano una terrazza di proporzioni notevoli, adatta a sport acquatici, tender handling e momenti di socialità. Le scalette sono robuste e ben distanziate per consentire risalite comode anche con attrezzature; i passaggi verso l’interno restano liberi, senza elementi di intralcio o salti di quota mal risolti. In navigazione, ogni elemento è assicurato per evitare vibrazioni e rumori parassiti.
Esperienza in navigazione
Sensazioni al timone
La barca risponde con progressività. Ai bassi nodi, l’erogazione elettrica controlla il moto con finezza, assecondando le correzioni millimetriche tipiche delle manovre in spazi ridotti. Salendo di andatura, l’assetto resta neutro e la sensazione è di facilità; col vento al traverso si apprezza la superficie bagnata relativamente contenuta per la categoria, che evita derive e comportamenti ambigui. Il ponte di comando, rialzato dove previsto, offre visibilità a 360° con limitatissimi coni ciechi.
Autonomia concreta
Tradurre i numeri teorici in pratica significa considerare carichi di bordo, condizioni del mare e pulizia delle carene. In scenari reali, il WiderCat 92 permette settimane di crociera con uso prevalente delle andature efficienti, intercalando fasi elettriche pure per preservare il comfort degli ospiti o per transitare in aree a sensibilità ambientale. La gestione propositiva dello state of charge — mai all’estremo, sempre in finestra — allunga la vita utile delle batterie e evita accensioni inutili dei generatori.
Mercato, concorrenza e contesto
Segmento di riferimento
Il WiderCat 92 presidia la fascia dei catamarani a motore di alta gamma sotto i trenta metri. Qui, il cliente cerca tre cose: spazi da superyacht, comfort sensoriale e costi operativi ragionevoli per l’uso vero. La spinta verso l’elettrificazione aggiunge una quarta variabile: la capacità di dimostrare, dati alla mano, che l’ibrido in serie è una soluzione non solo sostenibile ma anche efficace e affidabile su stagioni intere.
Rivali diretti
Nella stessa arena giocano altri multiscafi di pregio che puntano su personalizzazione estrema, generose superfici vivibili e crescente attenzione a soluzioni “eco-oriented”. La differenza concreta sta nell’integrazione della catena energetica e nella chiarezza d’uso: quando l’elettrico è il baricentro del progetto, e non un’aggiunta, i benefici su comfort e gestione si vedono. Ed è qui che questo 92 si ritaglia un posizionamento riconoscibile.
Tendenze del settore
Il mercato si muove verso barche in grado di viaggiare più lente ma più lontano, con una qualità di vita a bordo vicina a quella domestica. La nascita di marine attrezzate con infrastrutture dedicate all’energia, la crescente disponibilità di componenti elettrici marini certificati e l’evoluzione delle chimiche delle batterie indicano una traiettoria chiara: la prossima generazione di multiscafi sarà ancor più silenziosa, prevedibile nelle spese e flessibile nella gestione dell’energia.

Clienti e impieghi
Armatore privato
Il profilo tipo è un utente esperto, sensibile alla qualità percepita, che desidera autonomia vera e serenità operativa. Valuta la silenziosità in rada come parametro di lusso, apprezza la possibilità di viaggiare con comfort costante e guarda al valore residuo legato a una tecnologia matura e ben integrata. La possibilità di personalizzare gli interni è importante, ma mai a scapito dell’ordine tecnico e della manutenibilità.
Charter di alto livello
Per gli operatori professionali, la piattaforma è interessante perché differenzia l’offerta con argomenti misurabili: cabine ampie, aree sociali scenografiche, rumore basso, consumi prevedibili e facilità di conduzione. La ridondanza della piattaforma elettrica, la possibilità di isolare guasti e la gestione semplice dei cicli energetici riducono fermi e imprevisti. In altre parole, migliora l’operatività e la soddisfazione degli ospiti, che si traduce in tassi di ri-prenotazione più alti.
Ergonomia, sicurezza passiva e dettagli d’uso
Movimentazione a bordo
Scalette, corrimani, sedute e altezze dei passaggi sono dimensionati con buon senso nautico. Non ci sono gradini inattesi nelle zone di alto traffico e le soglie tra interno ed esterno sono livellate per ridurre inciampi e vibrazioni. Le porte scorrevoli sono guidate con tolleranze generose, per funzionare senza rumorosità anche dopo molte ore di utilizzo; le guarnizioni sono scelte in funzione della resistenza a raggi UV e salsedine.
Illuminazione e microclima
La luce naturale governa il main deck, ma è l’illuminotecnica artificiale a definire il carattere serale. Fasce indirette, punti dedicati alle attività e scenari preimpostati adeguano gli ambienti al momento della giornata. La climatizzazione, calibrata per lavorare anche in silenzio, mantiene uniformità di temperatura con sonde distribuite e logiche che prevengono stratificazioni, per evitare zone fredde o calde fastidiose, soprattutto durante le lunghe soste in rada.
Processo di allestimento e personalizzazione
Pacchetti e varianti
Il progetto offre margini di scelta su layout, finiture e dotazioni. Alcune varianti prediligono un’impostazione più domestica, altre esasperano la vocazione charter con spazi di servizio maggiorati e galley professionali. In tutti i casi, l’infrastruttura tecnica resta la stessa nella logica di base: alimentazione elettrica come spina dorsale, generazione a supporto e ridondanza funzionale su ciò che incide davvero nella vita di bordo quotidiana.
Controllo di coerenza
Le personalizzazioni sono filtrate da una regola non negoziabile: la manutenibilità e la sicurezza non si toccano. Un arredo non può ostacolare un’uscita d’emergenza, un materiale non può mettere a rischio la reazione al fuoco là dove non è ammesso, una paratia non può perdere accessibilità per fare spazio a un vano marginale. È il prezzo da pagare per avere una barca che resta solida e logica a distanza di anni.
Approfondimento iconografico




Linee guida d’impiego per l’armatore
Profilo di missione consigliato
- Andature: privilegiare 6–11 nodi, riservando il boost ai trasferimenti.
- Energia: mantenere lo state of charge in finestra centrale, evitando estremi.
- Manutenzione: adottare una logica condition-based su gruppi e conversione.
- Comfort: sfruttare la modalità hotel silenziosa per rada e notturni.
Accortezze stagionali
Prima di iniziare la stagione, verificare bilanciamento dei carichi e stato delle connessioni DC con ispezioni termografiche; durante l’uso, monitorare trend di temperatura su armadi elettrici e macchine; a fine stagione, eseguire aggiornamenti software del sistema di supervisione e test di capacità residua sui pacchi batteria. Sono procedure semplici che allungano la vita dell’impianto e mantengono i livelli di comfort ai valori attesi.
Video
Scheda tecnica compatta
-
- Tipologia: catamarano a motore, ibrido in serie
- Lunghezza fuori tutto: ~28 m
- Baglio massimo: ~12 m
- Pescaggio: ridotto per la classe
- Struttura: composito con core a celle chiuse
- Propulsione: 2 motori elettrici su linee d’asse
- Generazione: gruppi termici a regime variabile per trazione e servizi
- Accumulo: batterie LFP ad alta stabilità
- Integrazione: gestione energetica centralizzata con ridondanza funzionale
- Velocità di progetto: crociera efficiente 6–12 nodi; punta superiore per trasferimenti
- Allestimenti interni: suite armatoriale sul main deck (se previsto), 4 cabine ospiti nei due scafi, crew dedicato
- Spazi esterni: beach club espandibile, zone giorno coperte e scoperte
Posizionamento economico e valore
Prezzo e costo di possesso
L’investimento iniziale colloca il WiderCat 92 tra i prodotti di riferimento del segmento, ma il TCO beneficia della razionalità della piattaforma: meno ore termiche, intervalli manutentivi sensati, accessibilità tecnica. A fine stagione, i conti tornano quando la barca è stata utilizzata nel suo campo ottimale: molte miglia a velocità “lente”, tante ore in modalità silenziosa e una gestione ordinata dei cicli batteria.
Valore residuo
Una piattaforma coerente mantiene appetibilità nel tempo. La domanda di multiscafi di qualità è in crescita e l’elettrificazione non è una moda passeggera: le barche che trasformano la tecnologia in comfort quotidiano conservano valore perché restano desiderabili. Qui, l’insieme di spazi, silenzio e robustezza tecnica crea un pacchetto che convince anche a distanza di anni.


