Il Sanlorenzo 44Alloy è un superyacht di 44,5 metri realizzato interamente in alluminio che interpreta la formula fast displacement con un linguaggio coerente: superfici tese, tagli calibrati, impalcati sovrapposti che si incastrano come piani architettonici. Il risultato è una piattaforma tecnica elastica, capace di sostenere un livello di personalizzazione fuori scala rispetto alla media della categoria e, soprattutto, di accogliere una suite armatoriale su più livelli con aree scoperte riservate. L’assetto estetico non è un vezzo: nasce da scelte ingegneristiche su pesi, centri e irrigidimenti, con ricadute dirette su comfort, efficienza e fruibilità quotidiana.
Cantiere, metodo e credibilità
Sanlorenzo Superyacht: genealogia di un approccio “su misura”
La divisione Superyacht di Sanlorenzo opera con logiche da atelier industriale: catena di fornitura stabile, controllo qualità seriale, ma engineering aperto alla customizzazione profonda. In questo contesto, il 44Alloy non rappresenta una variabile isolata, bensì l’evoluzione di esperienze precedenti in lega leggera, che hanno raffinato pratiche di saldatura, joint design, trattamento anticorrosione e cicli di verniciatura di fascia alta. La reputazione del brand presso broker e comandanti nasce proprio da questa miscela: artigianalità tracciabile e processi ripetibili.

Filosofia costruttiva
Il cantiere imposta le scelte tecniche su tre colonne: pesatura reale in ogni fase (per abbinare i margini di progetto all’equipaggiamento del cliente), ottimizzazione dei flussi ospiti/servizio (privacy e funzionalità) e modularità degli impianti per la manutenzione in esercizio. La progettazione parametricamente assistita consente di variare spessori, passo degli irrigidimenti e schemi di compartimentazione senza introdurre complessità produttiva ingestibile.
Analisi tecnica approfondita
Dimensioni e architettura navale
Con 44,50 metri di lunghezza complessiva e 9,00 metri di baglio, l’Alloy lavora nella fascia alta sotto i 500 GT. Questa zona è strategica: consente volumi significativi e un impianto abitativo “residenziale” mantenendo al contempo regimi normativi e operativi meno onerosi di scafi più grandi. La carena è fast displacement in lega leggera: prua affilata, sezione a V moderata, spigoli dolci a media sezione e volumi poppieri calibrati per stabilità, silenziosità e rendimento ai regimi d’uso prevalenti.
La scelta della fast displacement non insegue la velocità assoluta, ma un’ampia finestra di efficienza: la resistenza d’onda sale gradualmente e non impone gradini di potenza netti nelle transizioni tra 11 e 18 nodi. L’architettura delle masse — fuel, acque, impianti HVAC, batterie, tender — è ottimizzata per contenere i momenti d’inerzia e ridurre il periodo naturale di rollio senza introdurre rigidità eccessiva che peggiori le accelerazioni verticali.

Materiali e processi
Lo scafo e la sovrastruttura sono in alluminio navale, con pannellature saldate su telai e longheroni a passo variabile. I principali vantaggi sono tre: geometrie complesse lavorabili con precisione; gestione dei pesi favorevole alle prestazioni; cicli di manutenzione programmabile con accessi tecnici generosi. Il trattamento anticorrosivo si basa su primer epossidici specifici, isolamento galvanico e cicli di finitura che proteggono i giunti saldati anche nelle zone a sollecitazione ciclica.
Negli interni, pietre alleggerite su supporto a nido d’ape, legni a poro aperto e metalli satinati consentono di raggiungere fit-out ricchi senza appesantire lo scafo. Le vetrate strutturali a tutta altezza sono integrate con telai a taglio termico per limitare ponti di calore e condensazioni, migliorando comfort e consumi HVAC in crociera estiva.
Motorizzazioni, trasmissione e assetto
La spinta è affidata a una doppia motorizzazione MTU serie 2000, tipicamente 16V in specifica M96L, con riduttori elastici e shaft line dimensionata per minimizzare vibrazioni torsionali. Le eliche sono a passo fisso ottimizzate per carichi medi — la porzione di missione più frequente — mentre la timoneria utilizza profili ad alta efficienza per mantenere autorità anche con avviamenti rapidi e virate strette. L’assetto è assistito da flaps o interceptors (secondo preferenza dell’armatore) per rifinire il trim in accelerazione e a crociera.
Elettronica di bordo e sistemi di navigazione
La plancia adotta un Integrated Bridge System con ridondanze fisiche e logiche: doppio chartplotter, radar con ARPA, ecoscandaglio multifrequenza, autopilota con interfaccia al sistema di stabilizzazione e rete CAN-bus/NMEA che alimenta la pagina conning su monitor di classe. Il monitoraggio impianti è centralizzato: pompe, serbatoi, luci tecniche, carichi elettrici, stati porta/aerazione e quadro allarmi sono gestiti da PLC e presentati su HMI dedicata.

Domotica, infotainment e power management
Illuminazione LED dimmerabile, schermature solari motorizzate, cristalli con funzione privacy, diffusione audio multizona e rete dati con dorsale in fibra per servire streaming 4K e sistemi work-from-yacht sono integrati nella logica domotica. Sul fronte energetico, l’Energy Management System bilancia i gruppi elettrogeni, attua peak shaving con batterie per carichi transitori (ascensori, verricelli, pompe) e supporta shore power a frequenze variabili per zero emissioni locali in banchina.
Prestazioni e autonomie
Il pacchetto propulsivo consente velocità massime intorno ai 21–22 nodi, con crociere gestibili nel range 13–20 nodi a seconda di allestimento e dislocamento effettivo. L’efficienza migliore, in termini di miglia per litro, si esprime nella zona 11–13 nodi; con serbatoi carburante nell’ordine di ~41–46 m³, l’autonomia utile su tratte mediterranee e caraibiche è tale da evitare rifornimenti quotidiani, soprattutto combinando il profilo “economy” con pianificazione HVAC e hotel load ragionata.
Design e regia dello spazio
L’impronta esterna, sviluppata con uno studio di design internazionale, lavora su tre elementi: tagli orizzontali che alleggeriscono la sovrastruttura, vetrate continue per amplificare la luce naturale e piani-soglia che trasformano la vita a bordo (terrazze apribili, beach club perimetrale, lounge di prua). La suite armatoriale, vero statement, si articola come un appartamento che attraversa più livelli: zona notte, living privato, spazi en plein air e — ove richiesto — plunge pool dedicata.
Layout interni: lettura ponte per ponte
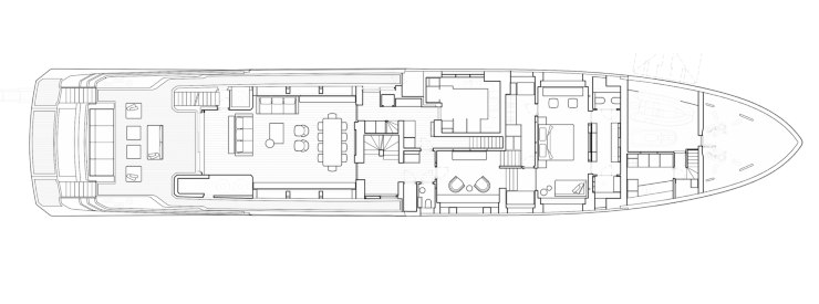
- Main deck: salone a tutta altezza, dining per dieci, lobby centrale, cambusa professionale isolata dai percorsi ospiti; verso prua l’appartamento armatoriale con studio, walk-in, bagno spa, terrazze e accessi esclusivi alle aree esterne.

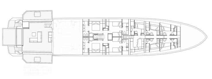
Sanlorenzo 44Alloy – ponte principale – sanlorenzoyachts.com - Lower deck: quattro cabine ospiti (due VIP e due doppie convertibili), beach club con aperture laterali e piattaforma idraulica, locali tecnici, lavanderia, cold rooms e deposito per water toys.

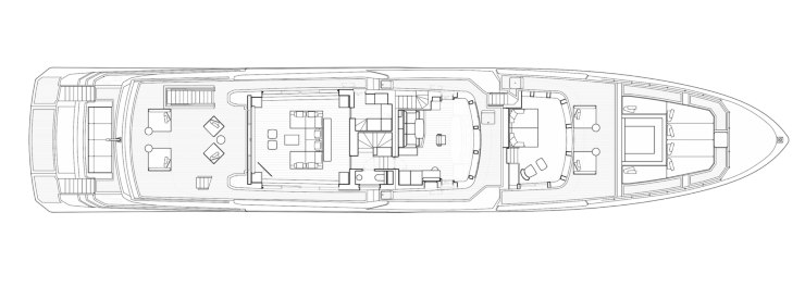
Sanlorenzo 44Alloy – ponte inferiore – sanlorenzoyachts.com - Upper deck: sky lounge panoramico, timoneria con vista avanzata, cabina comandante adiacente, aree esterne protette per dining informale.

Sanlorenzo 44Alloy – ponte superiore – sanlorenzoyachts.com - Sun deck: prendisole modulare, bar attrezzato, vasca idromassaggio a richiesta e protezioni perimetrali in cristallo.
Ergonomia, flussi e sicurezza operativa
La separazione dei percorsi è totale: i corridoi di servizio corrono paralleli al tracciato ospiti con collegamenti verticali dedicati, così da consentire hotelling discreto e rapido. I punti di carico/scarico sono schermati, le rientranze esterne diventano buffer acustici e visivi, le altezze interne sono generose (ove possibile oltre 2,05 m) senza penalizzare i pesi alti. Portelloni e terrazze sono gestiti da centrali idrauliche con valvole di sicurezza e fail-safe; sensori e logiche anti-schiacciamento tutelano l’uso in rada con ospiti in movimento.
Stabilizzazione e comfort dinamico
L’armatore può optare per pinne stabilizzatrici sotto carena, giroscopi o una soluzione combinata. Le pinne offrono efficienza underway e sono efficaci anche a basse andature; i giroscopi eccellono all’ancora. Una configurazione ibrida permette di contenere gli angoli indotti dal moto ondoso in ogni condizione, preservando logistica e vivibilità del beach club.
Vita a bordo e personalizzazione degli interni
L’allestimento interno è totalmente adattabile: dalla matericità calda (legni naturali, tessili tecnici ad alte prestazioni, metalli spazzolati) alla purezza monomaterica. Le scale sono concepite come elementi scultorei che guidano lo sguardo, i giunti tra superfici nascondono dilatazioni e ispezioni. Le cabine ospiti mantengono bagni con superfici composite leggere, rubinetterie di fascia alta e, ove richiesto, docce a tutta larghezza. L’acustica è curata tramite strati massa-molla-massa su paratie e cielini disaccoppiati.

Garage, tender e toys
Il garage accoglie un tender principale di circa 7,5–8,0 metri più un rescue/jet-tender o PWC. Guide e argani a basso profilo riducono al minimo gli ingombri, mentre i portelloni sono sagomati per non interferire con il volume del beach club. Le operazioni di varo/alaggio sono pensate per essere gestibili anche con onda residua, grazie al baricentro favorevole e ai punti di presa in acciaio a vista.
HVAC, isolamento e hotel services
I gruppi chiller a giri variabili alimentano fan-coil con regolazione fine stanza per stanza; sensori di CO₂, temperatura e umidità dialogano con il power management per prevenire picchi inutili. L’isolamento acustico e vibratorio impiega strati multicomposito (membrane ad alta densità + elastomeri) e supporti anti-vibrazione per macchine rotanti. Cucine e aree di servizio sono dotate di cappe bilanciate con recupero e filtri a più stadi.
Sicurezza, classi e conformità
Compartimentazioni A60, sistemi water-mist nei locali tecnici, estintori portatili ad agenti puliti nelle zone elettroniche, porte certificate, impianti antincendio con controllo centralizzato e lifesaving appliances dimensionati anche per impiego charter completano il quadro. Il progetto rimane commercial compliant sotto 500 GT, con tutti i benefici operativi e di gestione associati.
Prestazioni in navigazione: lettura ingegneristica
In accelerazione, l’assetto si mantiene basso grazie alla distribuzione delle masse e alla spinta delle eliche; il passaggio alla velocità di crociera avviene senza “gradini” marcati. Il trim si regola con interventi minimi di flaps/interceptors, a beneficio dei consumi. In virata, la carena conserva grip senza cavitazioni avvertibili ai timoni, e l’imbardata torna neutra rapidamente. Il beach club, quando aperto, non introduce risonanze strutturali percepibili in rada: la rigidezza del telaio poppiero e i punti di chiusura multipli eliminano scricchiolii e micro-flettimenti fastidiosi.

La rumorosità percepita in salone e cabine—complice la combinazione tra massa radiante, disaccoppiamenti e attenuatori sulle condotte—rimane su valori confortevoli a tutte le andature utili. All’ancora, con stabilizzazione attiva, le accelerazioni laterali vengono tenute entro soglie che rendono sicuri i movimenti degli ospiti su terrazze e piattaforme.
Mercato e concorrenza
Posizionamento di prezzo e segmento
Il 44Alloy presidia l’area premium degli all-aluminium intorno ai 45 metri, rivolgendosi a clienti che cercano libertà compositiva estrema, linguaggio estetico contemporaneo e prestazioni coerenti con l’uso reale. Il posizionamento economico riflette la complessità costruttiva della lega leggera, l’elevata densità impiantistica e la personalizzazione quasi sartoriale di interni e impianti.
Competitor diretti: mappa comparativa
- Alloy 43–45 m di altri brand italiani: filosofia vicina per materiali e proporzioni, ma con approcci meno radicali alla suite armatoriale su più livelli.
- Fast 42–44 m totalmente in alluminio: vocazione più sportiva, potenze superiori e velocità di punta maggiori, a fronte di volumi interni spesso meno “residenziali”.
- Acciaio/alluminio 40–50 m: comfort per inerzia di massa e grande autonomia; tuttavia, minor elasticità distributiva e pesi più elevati che implicano scelte differenti sulle potenze installate.
- Sportfaster 45–50 m: linee aggressive e arredi essenziali, beach club rilevanti ma focus centrato su performance; meno vocazione all’apartment living del 44Alloy.
Trend che il 44Alloy intercetta
- Outdoor moltiplicato terrazze, prua abitabile, beach club a tutto perimetro.
- Efficienza reale carena fast displacement per crociere lunghe ai medi regimi.
- Ibridazione soft gestione energetica evoluta, batterie per carichi transitori e shore power assistito.
- Custom end-to-end interni, layout, sistemi e materiali ritagliati sul profilo dell’armatore.

Clientela target
Armatori privati con esperienza precedente su 30–38 metri che desiderano salire di scala senza varcare la soglia dei 500 GT; famiglie che puntano su privacy, benessere e fruizione del mare low-stress; operatori charter di alto livello che monetizzano hero features come beach club perimetrale e suite su più livelli con aree esterne esclusive.
Risultati, ordini e riconoscimenti
Il 44Alloy ha ottenuto ampia visibilità per la regia spaziale della suite armatoriale e per l’uso intelligente dell’alluminio come leva progettuale, catalizzando ordini ripetuti e interpretazioni d’interno affidate a firme diverse. La presenza nelle principali fiere internazionali della nautica ha consolidato la percezione di uno scafo “di sistema”, capace di rappresentare sia il gusto mediterraneo sia le esigenze di crociera a più lungo raggio.
Innovazione, sostenibilità e ricerca
Oltre alla riduzione dei pesi e alla conseguente ottimizzazione delle potenze, il progetto integra strumenti di ingegneria digitale (modelli FEM, analisi modali, digital twin di impianto) per definire irrigidimenti e giunti con precisione, riducendo materiale superfluo e migliorando l’accessibilità per ispezioni. Sul fronte ambientale, la combinazione tra hotel load efficienti, peak shaving e cold ironing abbatte consumi e impronta locale; l’alluminio è riciclabile e consente revisioni mid-life meno invasive.
Confronto ingegneristico con la concorrenza
Geometria e sfruttamento dei volumi
Entro il vincolo dei 500 GT, molti progetti privilegiano simmetria e ripetizione; il 44Alloy invece stratifica i piani per generare spazi multipli che dialogano con l’esterno: terrazze abbattibili, social bow, beach club perimetrale. Ne deriva un indice di vivibilità per metro lineare superiore alla media del segmento.
Prestazioni e consumi
Rispetto a scafi puramente plananti omologhi, il 44Alloy rinuncia a qualche nodo di punta per guadagnare in range e comfort ai regimi medi, dove si consuma gran parte delle ore motore. In confronto con l’acciaio/alluminio, la lega leggera riduce la potenza installata a parità di programma e rende più reattiva la risposta ai carichi.
Funzione e lifestyle
La combinazione suite su più livelli + piscina privata e beach club su tre lati è l’elemento che più sposta l’ago della bilancia in ottica di uso reale: privacy quando si desidera, socialità immediata quando si apre la poppa, percorsi di servizio sempre indipendenti.

Prospettive: evoluzioni possibili
Le traiettorie più probabili riguardano un’ulteriore ibridazione energetica (batterie più capienti per hotel load in silenzio), perfezionamenti dell’ingegneria digitale (monitoraggio predittivo, manutenzione su condizione) e soluzioni di arredo strutturale per risparmiare peso senza rinunciare alla qualità tattile. La piattaforma 44Alloy, per la sua flessibilità, è pronta ad accogliere questi step con minimi impatti su pesi e baricentri.
Galleria foto



Scheda tecnica ragionata
- Lunghezza f.t. 44,50 m
- Baglio 9,00 m
- Pescaggio ~2,3–2,4 m
- Tonnellaggio lordo ~490 GT
- Costruzione Scafo/Sovrastruttura: lega leggera; verniciatura multilayer
- Motori 2× MTU serie 2000, linea d’asse
- Velocità massima ~21–22 kn
- Velocità di crociera ~13–20 kn
- Carburante ~41.000–46.000 L
- Acqua dolce ~8.000 L (variabile su specifica)
- Ospiti 10 in 5 cabine
- Equipaggio 9 con percorsi e alloggi dedicati
Note per l’uso e raccomandazioni operative
- Pianificazione carburante: sfruttare la zona 11–13 nodi per massimizzare autonomia e comfort, riservando i 18–20 nodi a tratte time-critical.
- Manutenzione predittiva: programmare diagnosi vibrazionali su linee d’asse e controlli termografici su quadri per prevenire derive.
- Beach club: verifiche cicliche su guarnizioni, sensori e snodi dei portelloni per preservare tenute e silenziosità.
- HVAC: calibrare set-point e curve dei chiller a seconda della latitudine, per ridurre consumi in rada.
Video
Conclusioni: posizionamento nel settore
Il Sanlorenzo 44Alloy rappresenta una sintesi contemporanea di engineering, design e qualità percepita. Non punta a record di velocità, ma alla coerenza tra architettura navale e vita a bordo: spazio vissuto, efficienza reale, privacy modulabile. Nel panorama dei quaranta-cinque metri, emergono tre tratti distintivi: la regia dell’appartamento armatoriale su più livelli con aree open-air private; il beach club capace di trasformare la rada in una piattaforma sociale; la libertà progettuale offerta dall’alluminio, che consente aperture e proporzioni rare in questa taglia. Per armatori che cercano un superyacht sotto 500 GT ma non intendono scendere a compromessi su fruibilità, ritmo estetico e controllo ingegneristico, il 44Alloy è—senza retorica—una delle proposte più complete oggi disponibili.
Nota: dimensioni, prestazioni e capacità possono variare in funzione dell’allestimento, dell’anno e delle opzioni scelte dall’armatore.


