Il B.Yond 40M è la risposta di Benetti alla domanda crescente di yacht a lungo raggio che privilegiano abitabilità, autonomia reale e silenziosità operativa. La piattaforma nasce come dislocante puro con mission profile oceanico, impostata su quattro livelli funzionali e concepita per tenere separati i percorsi di equipaggio e ospiti. L’imbarcazione si colloca nell’area 40 metri con volumetrie generose rispetto alla lunghezza, carena ottimizzata per regimi medi e una proposta ibrida modulare che consente di modulare l’energia a bordo in funzione dello scenario: rada, trasferimento, manovra a emissioni ridotte.
Profilo del cantiere
Radici e cultura progettuale
Benetti è un riferimento storico nella costruzione di yacht in acciaio e alluminio. La sua cultura ingegneristica ruota attorno a processi di progettazione integrata, controllo dei fornitori, prototipazione su elementi critici (isolamento, vibro–acustica, impianti) e taratura dei cicli produttivi sulla durata nel tempo. Il cantiere ha progressivamente ibridato eleganza formale e approccio industriale, introducendo flussi di lavoro che consentono personalizzazione profonda senza smarrire standardizzazione dove conviene: sezioni di scafo razionalizzate, allestimenti modulabili, sottosistemi testati su piattaforme sorelle.
Reputazione e posizionamento industriale
La reputazione si fonda su tre elementi: qualità percepita ininterrotta negli anni, comprensione dei bisogni di bordo su crociere lunghe e capacità di consegnare unità che mantengono valore in rivendita. Il marchio intercetta un pubblico che pretende ambienti residenziali, ingegneria matura e un’assistenza post–vendita strutturata. La famiglia B.Yond, con il 40 metri quale base, rafforza l’immagine di costruttore in grado di proporre yacht range–driven senza rinunciare alla cifra estetica e al lusso tipici del made in Italy.

Architettura navale e dimensionamento
Geometria, volumetria e stabilità
L’unità misura circa 39,9 m fuori tutto, con un baglio nell’ordine degli 8,6 m e pescaggio intorno ai 2,6–2,7 m a pieno carico. La stazza lorda si colloca tipicamente nell’intervallo 425–480 GT a seconda di layout e allestimenti, indicatore di volumi utili superiori alla media per la categoria. La carena è dislocante: prua piena per volumi e portanza a basse velocità, sezione maestra studiata per contenere resistenze viscose e indotte ai regimi dove lo yacht opera per la maggior parte del tempo (10–12 nodi), poppa progettata per minimizzare scie parassite e favorire la portanza necessaria al beach–club. Il meta–centric height trasversale è bilanciato dall’uso dell’alluminio in sovrastruttura, soluzione che riduce i pesi alti e contribuisce a una risposta al rollio più dolce con stabilizzatori attivi.
Organizzazione su quattro livelli
Il progetto articola i flussi verticali per segregare funzioni e garantire efficienza operativa: ponte inferiore dedicato ai servizi e agli alloggi dell’equipaggio con vie tecniche, ponte principale come cuore dell’ospitalità (suite armatoriale a tutto baglio a prua e cabine ospiti a centro–barca), ponte superiore con grande area giorno a sviluppo longitudinale, ponte di comando con plancia, veranda chiudibile e spazi tecnici. Questa stratificazione, oltre a migliorare privacy e sicurezza, semplifica manutenzione e ispezionabilità, elementi cruciali su crociere prolungate.

Materiali e soluzioni costruttive
Scafo e sovrastruttura
La scelta combinata acciaio/alluminio è coerente con la destinazione d’uso. Lo scafo in acciaio garantisce inerzia strutturale e robustezza in condizioni oceaniche, oltre a smorzare vibrazioni trasmesse. L’alluminio è impiegato per sovrastrutture e parti superiori per abbattere il baricentro verticale e favorire la stabilità iniziale. I ponti esterni adottano teak marino con schema di posa ottimizzato per drenaggi e dilatazioni termiche; sotto il rivestimento sono integrati pannelli con trattamenti antivibrazione.
Interni, pannellature e isolamento
All’interno si fa ricorso a sistemi di pannellatura flottante su sottostrutture elastiche, vetri stratificati a bassa emissività e materiali compositi leggeri per arredi dove il peso è critico. I rivestimenti impiegano essenze chiare e pietre alleggerite con supporti alveolari per ridurre massa mantenendo la sensazione di materia piena. L’insieme è finalizzato a un comfort termico e acustico percepito, con valori di rumorosità in cabina target allineati alla quiete residenziale durante la crociera economica e la permanenza in rada in modalità silenziata.

Propulsione, trasmissione e gestione dell’energia
Endotermico e linea d’asse
La motorizzazione tipica prevede due V12 di grande diffusione nella classe, abbinati a riduttori con predisposizione per la trazione elettrica ausiliaria e ad assi calibrati per erogare coppia piena ai regimi di crociera. L’elica è selezionata per rendimenti ottimali al 70–80% del carico continuo, con profili che privilegiano efficienza rispetto alla massima velocità e limitano cavitazione in mare formato.
Architettura ibrida modulare
Il pacchetto ibrido opzionale introduce macchine elettriche in presa sugli assi, gruppi elettrogeni a gestione intelligente e un sistema di batterie agli ioni di litio integrato a bordo. Le logiche previste includono il funzionamento in parallelo (assist) e il diesel–elettrico a carico ottimizzato, oltre alle fasi di sola propulsione elettrica per manovre e tratti brevi in zone sensibili. Un Power Management System governa priorità e bilanciamento tra hotel load e trazione, con scenari preimpostati (rada silenziosa, arrivo/partenza dal porto, crociera economica, emergenza).
Impatto operativo e manutentivo
L’adozione dell’ibrido riduce ore di funzionamento dei generatori, abbatte le emissioni locali e soprattutto la rumorosità percepita nelle aree notte. Dal punto di vista manutentivo, richiede competenza sugli apparati di potenza, controllo termico delle batterie e sorveglianza costante di parametri elettrici; la disposizione su quattro ponti libera spazi tecnici e passaggi cavi razionali, semplificando accesso e sicurezza dell’operatore.
Prestazioni e comportamenti
Velocità caratteristiche e autonomia
La filosofia è range first: la velocità massima si attesta nell’intorno dei 14 nodi, mentre la migliore quality speed si colloca tra 10 e 12 nodi, dove vibrazioni e consumi sono più favorevoli. L’autonomia di progetto raggiunge migliaia di miglia nautiche a 10 nodi, valore che consente traversate transoceaniche con ampi margini operativi. La capacità carburante, la densità energetica dei pacchi batteria e l’ottimizzazione dell’hotel power fanno la differenza nei profili d’uso con molte notti in rada.
NVH, rollio e comfort dinamico
L’accoppiamento elastico delle linee d’asse, le basi motore smorzate e le pannellature su antivibranti consentono di contenere i picchi di rumorosità a bordo. In crociera, la sensazione è di continuità, con risposte progressive e prevedibili anche con mare al giardinetto. Stabilizzatori a pinna a velocità zero e, su richiesta, giroscopi di supporto, riducono il rollio all’ancora e rendono agevole la vita sul main deck e sul ponte superiore in condizioni d’onda laterale.
Sistemi di bordo e automazione
Navigazione
La plancia adotta integrazione totale delle funzioni: sensori ridondati, radar in bande differenti, ECDIS, autopilota con leggi di controllo ottimizzate per la rotta economica e consolle di conning con interfacce chiare per stato apparati e impianti. La connettività satellitare e costiera garantisce continuità dei servizi digitali e della reportistica tecnica, con canali separati per dati critici e infotainment.

Domotica e impiantistica
L’architettura elettrica impiega bus dedicati per illuminazione, climatizzazione e schermature solari, coordinati da un sistema di supervisione che consente scenari e automazioni per ambienti e orari. Le matrici AV/IT multi–zona distribuiscono contenuti ad alta definizione senza latenza percepibile, mentre i controlli locali mantengono sempre la possibilità di override manuale. Il monitoraggio energetico consente di ottimizzare il carico dei generatori e l’impiego delle batterie, allungandone il ciclo di vita.
Design esterno, organizzazione degli spazi e layout
Lettura formale e funzionale
Il profilo è scandito da piani orizzontali netti e ampie superfici vetrate; l’effetto è quello di una stratificazione di ponti che “galleggiano” uno sull’altro, con un ritmo visivo equilibrato fra pieni e vuoti. Gli spigoli sono gestiti con raggiature ampie per limitare turbolenze e accumuli di salsedine, mentre le battagliole sono integrate per pulizia visiva e sicurezza in movimento.
Ergonomia e percorsi
Il ponte superiore è concepito come ambiente longitudinale continuo che favorisce convivialità e vista panoramica; scale interne studiate come elementi scultorei permettono transiti fluidi senza sacrificare superfici usabili. Il beach–club a poppa è una vera stanza sull’acqua, con piattaforme ad apertura che estendono la fruizione in modalità balneare; la veranda del ponte di comando è chiudibile e climatizzabile per ampliare la stagionalità, dalle alte latitudini estive ai periodi più freschi in Mediterraneo.
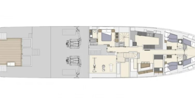
Layout



Innovazione e sicurezza
Riduzione emissioni e uso intelligente dell’energia
La catena ibrida è il punto di discontinuità rispetto a proposte più tradizionali. L’adozione di modalità elettriche per manovre e brevi spostamenti porta benefici immediati in aree portuali o in prossimità di riserve naturali. La navigazione con diesel–elettrico in crociera economica consente di mantenere il regime endotermico al punto di massimo rendimento specifico, diminuendo consumi orari e usura.
Sicurezza attiva e passiva
Oltre alle paratie stagne e ai sistemi antincendio con rivelazione e spegnimento a indirizzamento, il progetto prevede ridondanze sui sottosistemi essenziali: pompe, generazione elettrica, comunicazioni, governo. I percorsi tecnici sono separati e presidiati da sensori; l’accessibilità alle macchine è pensata per interventi rapidi e controlli giornalieri senza interferire con le aree ospiti.
Vita a bordo e qualità percepita
Cabine e aree giorno
Il B.Yond 40M accoglie dieci ospiti in cinque cabine, con la suite armatoriale a pieno baglio sul ponte principale e quattro alloggi ospiti sullo stesso livello. L’open–space del ponte superiore funziona come day area principale; il sun deck offre spazi all’aperto con zone pranzo e relax ridisegnate intorno a percorsi d’ombra e ventilazione naturale. L’equipaggio dispone di alloggi e percorsi dedicati, cambusa con passavivande razionale e sale macchine servite da varchi ampi per estrazione apparati.

Comfort ambientale
Climatizzazione a zone, schermature solari intelligenti e illuminazione a temperatura di colore variabile consentono di personalizzare il microclima. Le soglie acustiche in suite possono essere mantenute molto basse in rada grazie alla modalità silenziata dell’ibrido, mentre l’isolamento fra cabine e corridoi limita la trasmissione del suono durante le attività di bordo.
Comportamento in mare: prove e riscontri
Assetto e conduzione
Nei test con carico rappresentativo, l’assetto risulta leggermente appruato a velocità inferiori ai 9 nodi e si orizzonta entrando nell’intervallo 10–12 nodi, dove lo yacht esprime la sua rendita di progetto. Le timoniere rispondono con progressività; le traiettorie mantengono prevedibilità in virata piena senza effetti di sovrasterzo. In presenza di onda lunga di prua, lo scafo lavora di volontà e mantiene comfort, mentre l’azione degli stabilizzatori minimizza rollio residuo laterale.
Percezioni a bordo
La trasmissione vibrazionale in saloni e cabine è contenuta; i punti di contatto (pavimenti, corrimani, zone seduta) restituiscono la sensazione di yacht solido, con micro–movimenti filtrati dall’accoppiamento elastico delle parti. In rada, la modalità elettrica spegne il rumore di fondo dei generatori: resta una ventilazione dolce e un fruscio di bordo controllato.

Mercato e concorrenza
Segmento e prezzo relativo
Il 40 metri di Benetti presidia la fascia voyager/explorer con enfasi su autonomia e volumi. Il prezzo, influenzato da livello di personalizzazione, dotazioni e tempi di consegna, si posiziona nella parte alta del segmento coerente con acciaio/alluminio e contenuti ibridi. La differenza non è cercata sul numero di nodi, ma sul valore d’uso: silenzio in rada, settimane a bordo senza affaticamento, manutenzione programmata facilitata.
Panorama competitivo
Tra gli sfidanti diretti rientrano yacht di simile lunghezza con filosofia esplorativa o eventi lifestyle marcati. Alcuni modelli privilegiano spazi balneari estremizzati con piattaforme apribili e piscine integrate; altri spingono su velocità maggiori grazie a scafi in composito e propulsioni leggere. Il B.Yond 40M punta invece su carena dislocante efficiente, volume interno sopra media e integrazione ibrida matura, risultando particolarmente convincente per chi macina miglia e cerca privacy reale.
Destinazione d’uso e profilo dell’armatore
Armatori privati
Il cliente tipo è esperto, desidera itinerari ampi e durate estese a bordo, considera il comfort acustico un requisito non negoziabile e apprezza soluzioni che semplificano la vita dell’equipaggio. L’attenzione si concentra su layout flessibili (SPA, gym, studio), back–of–house efficiente e connettività affidabile per prolungare la permanenza senza rinunciare all’operatività professionale.
Flotte charter e rappresentanze
Per operatori di noleggio alto di gamma, il valore è nelle aree comuni generose, nell’accesso all’acqua immediato del beach–club e nella veranda climatizzabile che estende l’uso durante shoulder season. Per family office e società di rappresentanza, contano la conservazione del valore e la riconoscibilità del marchio in mercati internazionali.
Riconoscimenti e traguardi
Visibilità e ricezione
La piattaforma ha ottenuto attenzione nelle principali rassegne di settore grazie alla combinazione di volumi, veranda all–weather e approccio energetico. Il dialogo tra architettura esterna, interni residenziali e ingegneria ibrida rappresenta un pacchetto distintivo che ha generato ordini e discussioni tecniche sul tema del voyager. contemporaneo.
Proiezione futura e roadmap
Evoluzione di gamma
La famiglia B.Yond rappresenta un capitolo aperto verso unità più grandi e verso l’adozione trasversale di soluzioni ibride su altre linee del cantiere. L’elettrificazione modulare, la riduzione dei consumi specifici e l’ottimizzazione dell’hotel load sono direttrici già in atto. La predisposizione refit–ready su cablaggi e vani tecnici facilita aggiornamenti futuri su batterie, inverter e sensori.
Direzione tecnologica
Nei prossimi cicli, è verosimile un’ulteriore integrazione dei sistemi di gestione energetica con algoritmi predittivi legati a meteo–routing, profili utente e stato delle macchine, così da anticipare carichi e distribuire energia con maggiore efficienza. Parallelamente, l’isolamento vibro–acustico continuerà a evolvere con materiali compositi e giunti più raffinati per abbassare ulteriormente le soglie NVH.
Approfondimento iconografico


Scheda tecnica sintetica (punti chiave)
- Tipologia: yacht dislocante a lungo raggio, quattro ponti funzionali
- Materiali: scafo in acciaio; sovrastruttura in alluminio; ponti esterni in teak
- Dimensioni di riferimento: LOA ~39,9 m; baglio ~8,6 m; pescaggio ~2,6–2,7 m
- Volumetria: ~425–480 GT in funzione di layout e allestimenti
- Motorizzazione: doppio V12 con linea d’asse e riduttori predisposti
- Propulsione ibrida: macchine elettriche su assi, batterie Li–ion, scenari di esercizio multipli
- Prestazioni: massima intorno a 14 kn; regime consigliato 10–12 kn
- Autonomia: migliaia di nm a 10 kn (profilo oceanico)
- Ospitalità: 10 ospiti in 5 cabine; equipaggio fino a 9 con percorsi dedicati
- Spazi salienti: ponte superiore open, veranda chiudibile sul bridge, beach–club con piattaforme
- Sistemi: stabilizzazione a velocità zero; integrazione domotica; connettività satellitare
- Focus: comfort prolungato, efficienza energetica, privacy e separazione flussi
Video
Conclusione
Il Benetti B.Yond 40M ragiona in termini di qualità di crociera: non rincorre picchi di velocità, ma un equilibrio tra silenzio, autonomia e spazi residenziali utili ogni giorno. La scelta di una carena dislocante efficiente e di un’ibridazione modulare produce benefici misurabili su consumi, ore–macchina e NVH, mentre la stratificazione dei ponti con percorsi separati rende la vita di bordo scorrevole e professionale. Nel paesaggio competitivo, la proposta si distingue per maturità ingegneristica e coerenza d’uso: perfetta per chi ha programmi nautici ambiziosi e vede nello yacht un luogo dove vivere davvero, a lungo e in continuità, con il mare come orizzonte quotidiano.


