L’Arcadia A105 non nasce come un tradizionale superyacht “vestito” con soluzioni di design, bensì come un dispositivo abitativo marino in cui forma, struttura e impianti convergono in un unico schema funzionale. L’impostazione generale privilegia la continuità spaziale, riducendo la separazione tra volumi interni ed esterni e rendendo permeabile la relazione con l’ambiente circostante. Dal punto di vista dell’architettura navale, siamo di fronte a una carena semi-dislocante ottimizzata per andature intermedie, con una curva di resistenza favorevole nella fascia di crociera tipica del Mediterraneo. Il profilo basso, la sovrastruttura leggera e le ampie superfici vetrate strutturali compongono un linguaggio coerente in cui la luce naturale diventa materiale costruttivo a tutti gli effetti.
L’attenzione alla gestione energetica – dalla produzione alla distribuzione, fino alla mitigazione dei carichi alberghieri – guida molte scelte: superfici orizzontali predisposte a supporto fotovoltaico, vetri a bassa emissività con schermature integrate, impianti HVAC a zonizzazione fine, sistemi di stabilizzazione per ridurre movimenti residui e incrementare l’utilizzo effettivo delle aree all’aperto. Questo impianto concettuale, più vicino a un framework che a uno stile, spiega perché l’A105 riesca a mantenere comfort acustico, efficienza e vivibilità prolungata in rada e in navigazione.

Il cantiere: identità, metodo e reputazione
Genesi del brand e filosofia costruttiva
Arcadia Yachts ha costruito la propria identità su tre cardini: contenimento dei consumi, massimizzazione dell’illuminazione naturale e fruizione ibrida degli ambienti. In termini metodologici, ciò si traduce in scelte strutturali leggere ma rigide, in una ricerca avanzata su vetrature e ombreggiature mobili, e in un uso ragionato della componentistica per ridurre massa in alto, mantenere baricentri contenuti e ottenere piani di coperta utilizzabili in più configurazioni. L’A105 rappresenta una delle espressioni più mature di questa impostazione: un “piattaforma” modularizzabile che permette settaggi spaziali differenti senza rivoluzionare il telaio di base.
Posizionamento del marchio nel mercato
Il costruttore ha saputo ritagliarsi una nicchia di mercato riconoscibile, intercettando armatori sensibili a temi di efficienza, silenziosità e vita indoor/outdoor non ostentata. La reputazione deriva dalla coerenza nel proporre soluzioni tecniche originali ma misurabili – per esempio, l’apporto energetico dei pannelli integrati e la riduzione dell’uso dei generatori in rada. Nel segmento 30–33 metri, l’A105 viene spesso scelto come alternativa al classico flybridge ad alto profilo, privilegiando un linguaggio razionalista e l’uso generoso di superfici trasparenti.
Architettura navale e proporzioni
Dimensioni principali e geometrie
Il fuori tutto si attesta poco oltre la soglia dei 31 metri, con un baglio ampio in relazione alla lunghezza che offre volumi trasversali capaci di ospitare layout residenziali, zone tecniche accessibili e percorsi separati equipaggio/ospiti. Il pescaggio rimane compatibile con fondali tipici dei porti mediterranei, mentre la distribuzione delle masse privilegia un baricentro contenuto per diminuire i momenti di beccheggio e rollio. La geometria di poppa è calibrata per sostenere la spinta alle andature intermedie, migliorando la portanza delle sezioni poppiere senza penalizzare i flussi a elica.

Piano di galleggiamento e comportamento dinamico
La carena semi-dislocante è impostata per offrire un plateau d’efficienza nella fascia 12–15 nodi. In questo intervallo, l’imbarcazione mostra assetto neutro, rumorosità contenuta e vibrazioni ridotte presso le aree giorno. L’opera viva è studiata per affrontare il chop corto con un angolo di prua che limita gli impatti, mantenendo una traiettoria prevedibile alle correzioni di timone. Il dimensionamento degli stabilizzatori, studiato per l’uso “at anchor” e in trasferimento, consente un abbattimento significativo dei movimenti, incrementando l’utilizzo reale delle superfici aperte anche in condizioni meteo non ideali.
Ingegneria dei materiali e scelte costruttive
Scafo e sovrastruttura
La struttura vede un impiego prevalente di GRP (vetroresina) per scafo e sovrastruttura, con rinforzi localizzati nelle zone a maggior sollecitazione e componenti in leghe leggere per la veranda e porzioni della sovrastruttura. Questa combinazione permette di contenere il peso nella parte alta, migliorare la rigidezza torsionale e semplificare la manutenzione nel ciclo di vita, con vantaggi concreti in termini di costi operativi e stabilità statica.
Vetrate, schermature e comfort termo-acustico
Elemento caratterizzante è l’uso estensivo di vetrature a bassa trasmittanza con doppi vetri e schermature mobili. Il pacchetto consente di sfruttare la luce naturale riducendo carichi termici e garantendo un ambiente silenzioso. La qualità della chiusura degli infissi, la corretta posa e gli strati fonoassorbenti nei rivestimenti contribuiscono alla mitigazione delle frequenze fastidiose, in particolare nelle aree giorno e nelle cabine armatoriali.

Motorizzazioni, trasmissioni e sala macchine
Configurazione propulsiva
La configurazione più diffusa prevede una coppia di propulsori V8 di 1.000 cavalli ciascuno, in linea d’asse, con riduttori dimensionati per sfruttare la coppia ai regimi medio-bassi. La scelta è coerente con la filosofia semi-dislocante: potenze che non inseguono picchi velocistici, ma regolarità d’erogazione, consumi ragionevoli e facilità di gestione. In termini manutentivi, l’accessibilità dei filtri, dei circuiti di raffreddamento e dei quadri di controllo risulta adeguata a interventi on-condition senza compromettere gli spazi dell’equipaggio.
Apparato eliche e linee d’asse
La coppia elica–riduttore è calcolata per massimizzare la spinta utile nelle andature tipiche. L’allineamento delle linee d’asse, il dimensionamento dei supporti e l’equilibratura riducono micro-vibrazioni e rumorosità a bordo. Il rapporto tra passo e diametro è selezionato per assicurare un buon margine di manovrabilità in porto e, al contempo, una trazione regolare nelle crociere di medio raggio.

Prestazioni: velocità, crociera, autonomia e consumi
Velocità di progetto e assetto
Il profilo prestazionale dell’A105 indica una velocità massima indicativa nell’intorno dei 17 nodi, con una crociera confortevole a circa 15 nodi. In questo ambito, il trim rimane controllato, l’angolo di incidenza dell’opera viva sull’onda è dolce e la timoneria garantisce correzioni progressive, evitando reazioni nervose che affaticano il timoniere e disturbano gli ospiti.
Autonomia e logica di esercizio
L’autonomia effettiva dipende dai profili di carico e dal dislocamento reale, ma la combinazione di regimi moderati, corretta scelta di eliche e supporto energetico ausiliario riduce sensibilmente l’uso dei generatori in rada. La filosofia operativa suggerita dal cantiere e adottata da molti comandanti è quella della “crociera silenziosa”: si naviga nel range di efficienza e, una volta all’ancora, si sfrutta il contributo impiantistico per mantenere un microclima confortevole contenendo vibrazioni e odori.
Sistemi di bordo: elettronica, automazione e impianti
Plancia e integrazione sensoriale
La postazione di governo raccoglie strumentazione multi-display per governo, navigazione e monitoraggio impiantistico. Le interfacce raggruppano radar, cartografia elettronica, autopilota e sensori ambientali, mentre i pannelli di controllo impianti consentono la gestione da un’unica logica. L’integrazione evita ridondanze non necessarie e riduce la complessità cognitiva durante la condotta.

Domotica e gestione energetica
Illuminazione, ombreggiature, tende, aperture scorrevoli, climatizzazione e infotainment multi-zona sono orchestrati da un sistema domotico che offre scenari preimpostati (navigazione, rada, sera, intrattenimento). La prioritizzazione dei carichi aiuta a evitare picchi e a prolungare l’autonomia dei sistemi quando si desidera limitare l’uso dei generatori. La diagnostica centralizzata facilita anche la programmazione degli interventi di manutenzione.
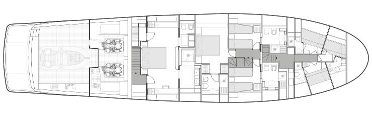
Design funzionale e layout abitabili
Logica distributiva
L’A105 predilige open space fluidi, con il salone principale che si espande verso poppa attraverso grandi aperture scorrevoli. Le aree pranzo possono essere interne o esterne senza soluzione di continuità, e l’upper deck ospita un salone panoramico convertibile che si apre su un’ampia zona relax poppiera. A prua sono possibili varianti che includono studio privato, playroom o una quinta cabina a seconda del profilo d’uso.
Cabine e spazi di servizio
La configurazione più apprezzata prevede quattro cabine ospiti tutte con bagno en suite, con opzione per la quinta cabina per portare la capienza a dieci ospiti. L’area equipaggio è progettata con percorsi separati per minimizzare le interferenze con la vita di bordo, garantendo servizio efficiente e privacy. La sala macchine è raggiungibile in sicurezza, con percorsi tecnici logici e compartimentazioni studiate per la gestione degli impianti.
Layout



Innovazioni mirate e riduzione dell’impatto
Energia ausiliaria e qualità ambientale
Tra le peculiarità dell’A105 spicca l’integrazione di pannelli fotovoltaici nelle superfici orizzontali della sovrastruttura. Non si tratta di sostituire i propulsori, bensì di alleggerire i carichi alberghieri e migliorare la qualità ambientale in rada, riducendo tempi di esercizio dei generatori. Il beneficio è percepibile in termini di silenziosità, vibrazioni e comfort termico.
Stabilizzazione e microclima
I sistemi di stabilizzazione operano sia in trasferimento sia all’ancora, consentendo di usare realmente gli spazi a cielo aperto in un ventaglio più ampio di condizioni. La sinergia tra schermature mobili, vetrate e HVAC modulare consente un microclima stabile con consumi razionali: un approccio “soft hybrid” che somma piccoli miglioramenti misurabili.
Esperienza a bordo: ergonomia e vivibilità
Comfort percepito e acustica interna
Il comfort non è affidato a un singolo accorgimento, ma a molte scelte che si rafforzano a vicenda: layout trasversali ampi, corridoi liberi, sedute centrali che liberano i passaggi laterali, finiture morbide al tatto, assorbimenti mirati in aree sensibili. La firma acustica dell’imbarcazione è uno dei tratti distintivi; a velocità di crociera la conversazione in salone rimane naturale e l’eco di fondo non affatica durante lunghe tratte.
Modularità degli ambienti
Spicca la possibilità di modificare in modo rapido la destinazione d’uso di porzioni del ponte superiore: il salone panoramico può divenire ambiente chiuso, semi-aperto o completamente integrato all’esterno, trasformandosi da lounge serale a sun deck conviviale. Questa modularità permette a un’unica piattaforma di soddisfare briefing familiari, di rappresentanza o di charter senza dover riprogettare la barca a ogni utilizzo.
Prove di navigazione e feedback professionali
Condotta e risposta
In esercizio, l’A105 offre una risposta prevedibile ai comandi di timone e una tenuta lineare in virata ampia. Gli inserimenti non sono mai bruschi; l’imbarcazione preferisce la pulizia del gesto del comandante alla ricerca di traiettorie aggressive. La prua, ben sostenuta, addolcisce l’impatto sul corto ondoso, mentre la poppa mantiene la trazione utile al regime di crociera, garantendo stabilità di rotta e comfort percepito nelle aree giorno.
Rumorosità e vibrazioni
Le misure di isolamento, l’equilibratura delle linee d’asse e l’accuratezza degli appoggi impiantistici si riflettono in livelli di vibrazione contenuti e in una rumorosità che, a 15 nodi, resta bassa nelle aree maggiormente frequentate. In rada, la possibilità di ridurre l’uso dei generatori rende l’esperienza particolarmente silenziosa, elemento cruciale per chi intende vivere a bordo in chiave residenziale.

Mercato e concorrenza
Segmento e valore
L’A105 presidia il territorio dei superyacht compatti con una cifra stilistica propria: linee tese, profilo basso, trasparenze diffuse e una dichiarata vocazione alla vita all’aria aperta. Il valore percepito, oltre che dai materiali e dalla qualità costruttiva, deriva dalla coerenza d’insieme: l’imbarcazione non rincorre l’effetto scenico fine a sé stesso, ma mira a massimizzare l’uso effettivo dei metri quadri disponibili in più condizioni ambientali.
Confronto con rivali diretti
Rispetto a prodotti concorrenti di analoga lunghezza che puntano su terrazze di poppa molto scenografiche o su asimmetrie dei passavanti, l’A105 propone una narrativa differente: non l’episodio architettonico isolato, bensì un sistema di scelte che potenziano trasparenza, controllo della luce e modularità. Il risultato è un profilo d’uso più elastico, interessante sia per armatore privato sia per flotte charter che cercano un’imbarcazione con forte personalità ma facile da gestire.
Riconoscimenti e presenze ai saloni
Visibilità internazionale
Il modello è stato protagonista in diverse kermesse internazionali di primo piano, consolidando l’immagine di yacht innovativo e riconoscibile. L’eco generata presso la stampa specializzata non è stata legata a un picco di moda passeggero, ma alla consistenza tecnica del concept: carena coerente con l’uso, impianti ragionati, layout funzionali e identità estetica chiara.

Prospettive evolutive
Direzione di sviluppo
Le traiettorie future verosimili si muovono su tre assi: ottimizzazione energetica (gestione carichi, storage, componentistica a basso assorbimento), automazione distribuita (riduzione delle complessità operative per equipaggi contenuti) e fine-tuning acustico (ulteriore filtraggio delle vibrazioni residue in alcune aree). L’impostazione modulare lascia spazio a personalizzazioni evolute senza snaturare il telaio tecnico.
Impieghi tipici e profili di utenza
Armatore privato e charter di fascia alta
Per l’armatore privato, la combinazione di spazi luminosi, silenziosità relativa e semplicità d’uso della piattaforma domotica offre un modo rilassato di vivere lo yacht. Nel charter di lusso, la modularità delle aree giorno e la presenza di quattro/cinque cabine con servizi dedicati favoriscono turni e rotazioni con alti standard di privacy. Anche le società di rappresentanza apprezzano la possibilità di allestire ambienti per eventi, presentazioni e accoglienza con passaggi equipaggio invisibili agli ospiti.
Manutenibilità e gestione
Accessibilità tecnica e routine
La progettazione della crew area e dei percorsi di servizio mostra attenzione per la manutenibilità: quadri elettrici ordinati, canalizzazioni ispezionabili, componenti critici raggiungibili. Questo si traduce in tempi di fermo ridotti e in un controllo puntuale dei cicli manutentivi, con benefici tangibili sulla disponibilità dell’unità e sulla prevedibilità dei costi.
Uso reale: scenari e routine a bordo
Giornata tipo in crociera
Partenza a regime moderato, salone arioso con viste continue sul mare, pranzo semi-aperto grazie alle aperture scorrevoli, ancoraggio in baia con sistemi di stabilizzazione attivi e serata in lounge con illuminazione calibrata dalla domotica. Nelle giornate più calde, schermature e HVAC mantengono il microclima; nelle mezze stagioni, le vetrate trasformano la zona giorno in una veranda temperata.

Eventi e rappresentanza
Il ponte superiore può assumere rapidamente configurazione hospitality con percorsi di servizio invisibili; l’ampiezza trasversale consente di distribuire gli ospiti senza congestioni, mentre la qualità acustica mantiene elevata l’intelligibilità del parlato, elemento non banale per presentazioni e momenti istituzionali.
Galleria immagini




Scheda sintetica (valori indicativi)
- Tipologia: motor yacht semi-dislocante
- Lunghezza f.t.: ~31,6 m
- Baglio massimo: ~7,8 m
- Pescaggio: ~2,1–2,2 m
- Stazza lorda: ~200 GT
- Dislocamento a pieno carico: ~140–150 t
- Motorizzazione: 2 × V8 ~1.000 hp
- Trasmissione: linee d’asse
- Velocità massima: ~17 kn
- Crociera di comfort: ~15 kn
- Capacità carburante: ordine di decine di m³ (configurabile)
- Alloggi ospiti: 4 cabine (8 pax) o 5 cabine (10 pax)
- Equipaggio: fino a 6
Analisi comparativa: perché scegliere A105
Vantaggi competitivi chiave
- Identità tecnica forte: luce naturale, trasparenze, profilo basso e carena coerente con l’uso mediterraneo.
- Efficienza percepita: riduzione dell’uso dei generatori in rada, comfort acustico e vibrazionale curato.
- Modularità reale: ambienti che cambiano funzione senza discontinuità distributive.
- Manutenibilità: percorsi tecnici logici, accessi ordinati e diagnostica centralizzata.
Punti di attenzione
- Velocità di picco non pensata per inseguire numeri estremi: la filosofia di progetto privilegia crociere equilibrate.
- Personalizzazione elevata: richiede un brief chiaro con il cantiere per valorizzare appieno la piattaforma.
Video
Considerazioni finali: posizionamento e senso del progetto
L’Arcadia A105 è il risultato di un pensiero progettuale che rifiuta l’ornamento fine a sé stesso e promuove una estetica della funzione. Carena, vetrate, ombreggiature, stabilizzazione e impianti non sono capitoli separati ma parti di un’unica equazione che ha come obiettivo un utilizzo intensivo e piacevole della barca nel maggior numero possibile di scenari. Le prestazioni non cercano picchi da manifesto; puntano, invece, alla percezione di qualità durante l’uso continuativo: luce, silenzio, aria, modulazione degli spazi, facilità di gestione.
Nel confronto competitivo, l’A105 si distingue per coerenza sistemica. Dove altri prodotti propongono soluzioni iconiche isolate, qui si avverte un filo conduttore tecnico che valorizza ogni metro lineare e ogni chilowattora. È una barca per armatori che desiderano un linguaggio chiaro, privo di ridondanze, e una piattaforma affidabile con cui disegnare crociere lunghe, soste in rada e momenti di rappresentanza senza che il mezzo rubi la scena al mare. In sintesi: uno yacht che non grida, ma convince — in navigazione, all’ancora e nel tempo.


